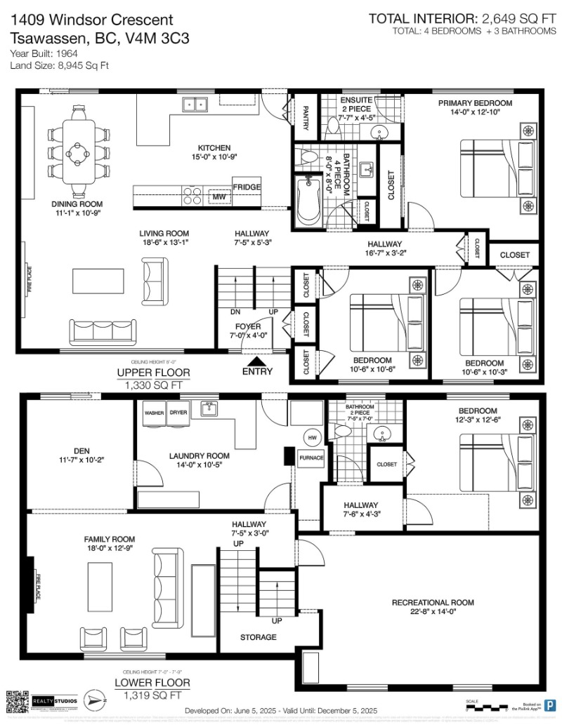
城市: 措瓦森 房屋类型: House 房屋风格: 2-storey 价格: $1,249,000 屋龄: 61 年 房屋面积: 2,649 平方英尺 占地面积: 8,945 平方英尺 卧室数量: 4 卫生间数量: 3 (全浴: 1, 半浴: ) 厨房数量: 1 地税: $5052.23/2024 发布时间: 2025-06-09 MSL: R3011851
投资机会!目前开价最低的房子! 这套坚固的 2,649 平方英尺住宅拥有 4 个卧室和 3 个浴室,位于 1409 Windsor Crescent 一个安静而位于中心的 8,945 平方英尺(69x100)平整地块上。机遇就在眼前! 带您的装修主意或建造新房!这套原住宅拥有一个朝西的大后院、一个朝南的大阳台、新的(2025)强制通风炉、更新的沥青瓦屋顶、更新的乙烯基框架双层玻璃窗,布局宽敞,潜力巨大。很容易在楼下建造一个收入助手或者作为姻亲套房。步行即可到达购物中心、餐厅、学校、娱乐场所和高尔夫球场,并且可轻松前往 17 号高速公路。可以装修、出租、持有房产或建造新房或复式公寓!上市价格低于 BC 评估值 182,300 美元!可快速入住。绝佳的投资机会!
~有意者请速联系 Stefan: info@geffketeam.com 或 text (604) 767-4038~
Opportunity knocks with this solid 2,649 sq ft 4 bedroom, 3 bathroom home on a large 8,945 sq ft (69x100) level lot on a quiet, but central 1409 Windsor Crescent. Bring your renovation ideas or build new! This original condition home boasts a large West facing backyard, a huge South facing balcony, new (2025) forced air furnace, updated asphalt shingle roof, updated vinyl frame double pane windows, a spacious layout with tons of potential. Easy to build an income helper/in-law suite downstairs. Within walking distance to shopping, restaurants, schools, recreation & golf course, & easy access to highway 17. Renovate, rental potential, holding property or build a new home or duplex! LISTED $182,300 BELOW BC ASSESSMENT VALUE! Quick possession possible. Great investment opportunity!
- 家富基温哥华房地产 / Stefan Geffke 注册经纪 - +1 (604) 767-4038
联系时请申明您是从加西网看到的信息