| 廣告聯系 | 簡體版 | 手機版 | 微信 | 微博 | 搜索:
歡迎您 游客 | 登錄 | 免費注冊 | 忘記了密碼 | 社交賬號注冊或登錄

首頁

溫哥華資訊

溫哥華地產

溫哥華教育

溫哥華財稅

新移民/招聘

黃頁/二手

旅游

素裡大動作 市中心計劃建造12棟樓


請用微信 掃一掃 掃描上面的二維碼,然後點擊頁面右上角的 ... 圖標,然後點擊 發送給朋友分享到朋友圈,謝謝!
(加西網綜合)素裡市中心計劃興建一個大型綜合用途開發項目,將為該地區帶來超過 2700 套新住宅,其中包括數百套長期租賃住房。


<a target=素裡市中心計劃建造12棟最高達48層的建築,共計2700套住宅。" src="images/Image/20260224/10520-132-Street-13270-13352-105A-Avenue-Surrey-Onni-f.jpg" />

(Arcadis/Onni集團)


這項長期、多階段的重建項目占地九英畝,位於 132 街 10520 號和 105A 大道 13270-13352 號地塊上,該地塊位於大學路University Drive 和 105A 大道交叉口以西,緊鄰沃利體育公園 Whalley Athletic Park 以南。

它還位於卑詩雄獅隊訓練場的西側,該訓練場可能會被重新開發成素裡市新的綜合娛樂中心,其中包括一個可容納 10,000 人的室內體育館、一家酒店以及商業和住宅用途。

此外,該開發地點距離天車素裡中心站和公交換乘站東南方向步行約 10 分鍾,距離 Gateway 站北方向步行約 10 分鍾。

10520 132 Street 13270-13352 105A Avenue Surrey Onni

素裡市第132街10520號和第105A大道13270-13352號。(谷歌地圖)


當地開發商Onni集團的這項最新大型提案將拆除四棟建於20世紀70年代初的現有低層公寓樓,這些公寓樓共有321套單元房。根據素裡市的政策,開發商必須在前20年內以低於市場價10%的租金出租這些單元房,且新房的臥室總數必須與新房相同。

根據這些要求,該項目將包括 321 套替代性安全專用出租房屋,其中包括 4 套單間公寓、202 套一居室公寓、112 套兩居室公寓和 3 套三居室公寓

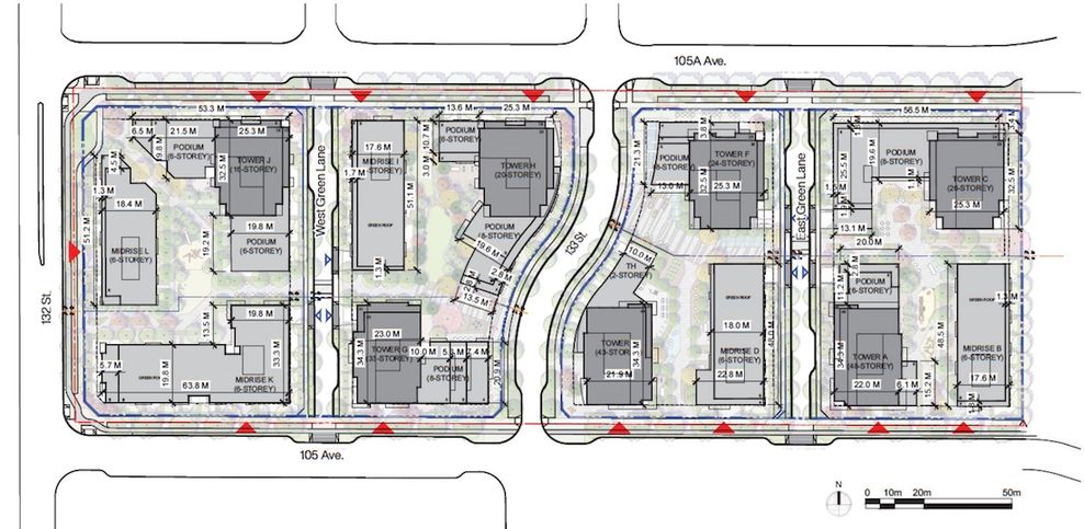
整個項目將新建12棟建築,其中包括7棟高層塔樓,高度介於16層至48層之間——最高的塔樓位於項目東側。除了每棟塔樓附帶的低層裙樓外,還將建造5棟獨立的低層建築,主要用於出租住房。


分契式產權公寓住宅將構成該項目住宅用途的其余部分,共有 2,384 套公寓住宅——單元面積組合包括 162 套單間公寓、681 套一居室公寓、1,031 套兩居室公寓、258 套帶書房的兩居室公寓和 246 套三居室公寓

10520 132 Street 13270-13352 105A Avenue Surrey Onni

素裡市第132街10520號和第105A大道13270-13352號的概念設計。(Arcadis/Onni集團)

10520 132 Street 13270-13352 105A Avenue Surrey Onni

素裡市第132街10520號和第105A大道13270-13352號的概念設計。(Arcadis/Onni集團)
覺得新聞不錯,請點個贊吧     無評論不新聞,發表一下您的意見吧
上一頁12下一頁
注:
  • 地產及投資版面的文章僅供參考,不作為投資建議。投資有風險,入市請謹慎!
  • 加西網版權所有,未經授權或許可,嚴禁轉載或摘錄
  • 在此頁閱讀全文
    猜您喜歡:
    您可能也喜歡:
    我來說兩句:
    評論:
    安全校驗碼:
    請在此處輸入圖片中的數字
    The Captcha image
    Terms & Conditions    Privacy Policy    Political ADs    Activities Agreement    Contact Us    Sitemap    

    加西網為北美中文網傳媒集團旗下網站

    頁面生成: 0.0226 秒 and 5 DB Queries in 0.0016 秒